Kaštel Kambelovac – stanovi

Na najekskluzivnijoj lokaciji u Kaštel Kambelovcu, smješteni iznad borove šume i samo nekoliko koraka od mora, nalaze se šest luksuznih stanova koji nude savršen spoj komfora, stila i prirodne ljepote.

Opis

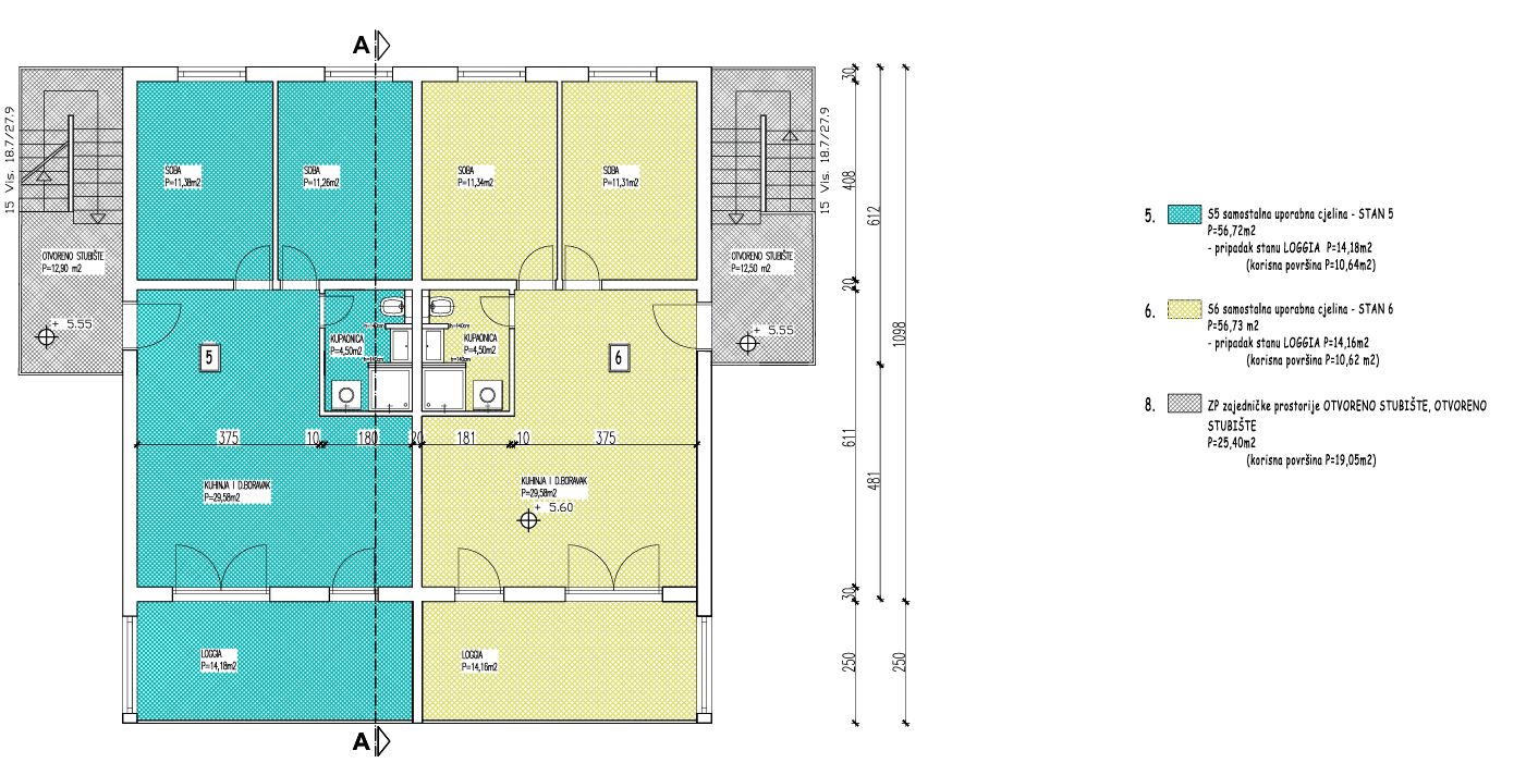
U prizemlju, na 1. i 2. katu se nalaze dvosobni stanovi površine 57 m² koji su pažljivo osmišljeni kako bi zadovoljili najviše standarde modernog stanovanja.

U potkrovlju se nalazi komforan stan površine 130 m².

Dvosobni stanovi sadrže:

  • Prostrani dnevni boravak s integriranom kuhinjom i blagovaonicom s pogledom na more.
  • Loggia od 14 m² – Vaša privatna terasa za opuštanje uz zvuk valova i miris borova.
  • Kompletno opremljenu kupaonicu s vrhunskim materijalima.
  • Namještaj uključen u cijenu – Svaki komad pažljivo je biran kako bi stvorio skladan i luksuzan ambijent.
  • Zaseban ulaz za maksimalnu privatnost.


ZAJEDNIČKI PROSTOR

Ova moderna zgrada nudi dodatne pogodnosti koje će upotpuniti vaš način života:

  • Bazen iza zgrade – Savršen za osvježenje u vrućim ljetnim danima.
  • Prostor za roštilj i druženje – Idealno mjesto za okupljanje s obitelji i prijateljima.
  • Privatni parking – Svakom stanu osigurano je parkirno mjesto.


LOKACIJA

Smješteni u prvom redu uz more, ovi stanovi pružaju jedinstvenu kombinaciju privatnosti i blizine svih sadržaja:

  • Plaže, šetnice, restorani i trgovine nalaze se na dohvat ruke.
  • Blizina važnih lokacija i prometnica omogućava jednostavnu povezanost sa Splitom, Trogirom i zračnom lukom.


UREĐENA DOKUMENTACIJA I MOGUĆNOST KUPNJE PUTEM KREDITA

Stanovi posjeduju urednu dokumentaciju i vlasništvo 1/1. Mogućnost kupnje putem kredita čini ih dostupnim kako domaćim kupcima, tako i onima iz inozemstva.


CIJENA DVOSOBNIH STANOVA:
280.000 €

Tlocrt

TLOCRT 2. KATA (prizemlje i 1. kat – identični)

Lokacija

Stanovi se nalaze u Kaštel Kambelovcu, smješteni iznad borove šume i samo nekoliko koraka od mora i plaže. U blizini se nalaze svi potrebni sadržaji: škola, vrtić, pošta, trgovine, kafići, restorani…

Zanima Vas ova nekretnina?

Za više informacija o raspoloživim stanovima i mogućnostima financiranja, slobodno nas kontaktirajte. Naš prodajni tim stoji vam na raspolaganju za sve upite i vođenje kroz proces kupnje.

Istražite još projekata

IMG 20240502 WA0004

Split (Kamen)

Solin Sv Kajo 2

Solin - Sv. Kajo

Sins Kaštel Štafilić 7

Kaštel Štafilić